Căn hộ Hùng Vương Plaza 2PN Modern

Căn hộ Hùng Vương Plaza 2PN Modern

Căn hộ Hùng Vương Plaza được định hình bởi sự trật tự và một vẻ đẹp đầy uy lực. Bảng màu trầm được sử dụng như một tuyên ngôn về sự mạch lạc và chiều sâu, tạo nên một không gian có sức nặng và cá tính.
Chất gỗ ấm được tiết chế một cách có chủ đích, mang lại sự cân bằng tinh tế cho các bề mặt kim loại và kính có độ bóng cao. Chính những bề mặt phản chiếu này đã nhấn mạnh vẻ đẹp của đường nét, đồng thời khẳng định một thẩm mỹ sang trọng, chuẩn mực.
Đây là một không gian sống được kiến tạo từ kỷ luật, nơi sự lịch lãm đến từ trật tự và sự tinh giản, mang lại một cảm giác mạnh mẽ và rõ ràng cho gia chủ.

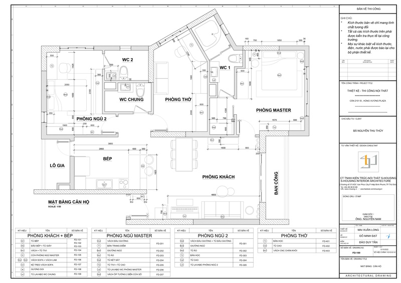
Dự án:

Căn hộ Hùng Vương Plaza

Phong cách:

Hiện đại

Ngôn ngữ thiết kế:

Kim Tinh Gọn

Diện tích:

130m2

Số phòng ngủ:

2

Năm:

2022

Kiến trúc sư:

Đào Duy Tân

Tags:

2PN, Modern