Căn hộ mẫu Kim Hạnh 28m2 Modern

Căn hộ mẫu Kim Hạnh 28m2 Modern

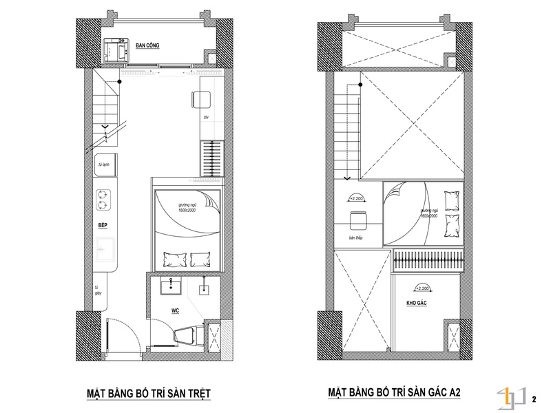
Thiết kế nội thất căn hộ mẫu Kim Hạnh 28m2 ứng dụng phong cách hiện đại (Modern), mở ra không gian sống thoải mái, tiện nghi với mọi ngóc ngách được tận dụng đầy sáng tạo. Bố cục mở tạo ra sự kết nối giữa các khu vực bên trong căn hộ. Tủ bếp chữ i nhỏ gọn với bồn rửa – bếp nấu – tủ lạnh được bố trí khoa học, tạo ra sự thuận tiện trong quá trình sử dụng. Với cấu tạo phòng chức năng gồm 1 bếp mở, 2 giường và 2 bàn làm việc riêng biệt, căn hộ 28m2 này trở thành không gian sống lý tưởng cho những hội bạn sinh viên. Và cũng là một ý tưởng hay dành cho những chủ đàu tư cho ý định thiết kế căn hộ mini cho thuê.

Dự án:

Căn hộ mẫu Kim Hạnh

Phong cách:

Hiện đại

Ngôn ngữ thiết kế:

Kim Tinh Gọn

Diện tích:

28m2

Số phòng ngủ:

2

Năm:

2024

Kiến trúc sư:

Đào Duy Tân

Tags:

2PN, Modern