Thiết Kế Shop Mỹ Phẩm Long An Modern

Thiết Kế Shop Mỹ Phẩm Long An Modern

“Xinh xắn, trẻ trung và sang trọng” là 3 tính từ chính xác nhất để dùng miêu tả vẻ đẹp của mẫu thiết kế shop mỹ phẩm này. Các hình khối bo tròn và những đường nét gợn sóng mang đến cảm giác mềm mại, uyển chuyển, đầy “nữ tính” cho không gian. Tông màu hồng pastel nhẹ nhàng chắc hẳn sẽ nhanh chóng gây ấn tượng với những cô nàng “bánh bèo” ngay từ lần đầu tiên đặt chân vào shop. Chất liệu kim loại ánh kim phản chiếu ánh sáng từ hệ đèn trần, đèn led chạy viền, tạo nên một tổng thể cực lung linh và bắt mắt.

Dự án:

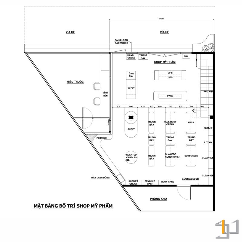
Shop mỹ phẩm

Phong cách:

Hiện đại

Ngôn ngữ thiết kế:

Kim Tinh Gọn

Diện tích:

200m2

Vị trí:

Long An

Năm:

2022

Kiến trúc sư:

Đào Duy Tân