Căn hộ Tân Phước Plaza 1PN Japandi

Căn hộ Tân Phước Plaza 1PN Japandi

Thiết kế căn hộ Tân Phước Plaza chú trọng vào sự tối giản, vững chãi. Từng món đồ nội thất được tinh chọn không chỉ vì sự tinh tế, sang trọng mà còn vì kết cấu chắc chắn, mang lại cảm giác an toàn và ổn định. Bảng màu trung tính, với các gam màu gợi nhớ đến đất, được phối hợp một cách hài hòa, tạo nên một bầu không khí thư thái và cân bằng.
Tất cả tạo nên một không gian sống vừa tinh tế, sang trọng, vừa mang lại cảm giác vững vàng, an yên – một nền tảng lý tưởng để xây dựng và vun đắp tổ ấm.

Dự án:

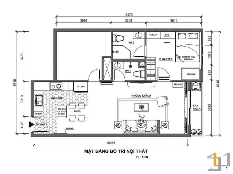
Căn hộ Tân Phước Plaza

Phong cách:

Japandi

Ngôn ngữ thiết kế:

Thổ Vững Chãi

Diện tích

60m2

Số phòng ngủ:

1

Năm:

2023

Kiến trúc sư:

Đào Duy Tân

Tags:

1PN, Japandi